
- VIP
800 KGS
3-5 лет опыта
Дизайн | Офисы, Дома
Дизайн квартир дизайн дома Смета на строительство Закуп материалов Консультация дизайнера Бесплатный замер Рестораны Кафе Клиники Стоматологии Магазины Бутики Квартиры Особняки ГостиницыВход•Регистрация
+996 556 272 4xx
Бишкек
Доп. услуги:
Тип помещения:
Вид услуги:
Опыт:
Студия Lito Art
Услуги дизайна интерьеров
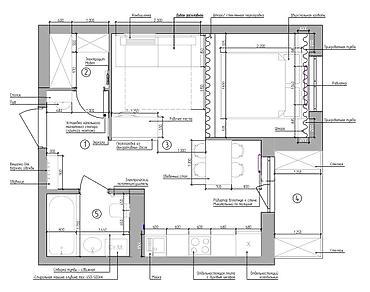
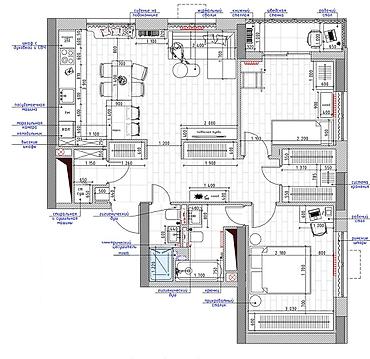
- Полный цикл от концепции до реализуемого проекта: замер, планировочные решения, 3D‑визуализации, рабочая документация (планы, развертки, спецификации материалов, мебели, освещения).
- Разработка стиля для квартир, домов и апартаментов: современный минимализм, скандинавский, неоклассика и спокойные натуральные оттенки.
- Подбор отделочных материалов, текстиля, напольных покрытий, красок и декоративных панелей; составление коллажей и цветовых карт.
- Светодизайн: сценарии освещения, треки, точечные светильники, подсветка ниш и штор.
- Эргономика и функционал: расстановка мебели, зонирование, решение хранения, совмещение кухни‑гостиной, продуманные спальни.
- Авторские ведомости по мебели и декору с альтернативами по бюджету.
- Комплектация: рекомендации по поставщикам, артикулы и объёмы закупки.
- Дистанционная и очная работа по исходным данным и планам БТИ.
- Сопровождение проекта на этапе ремонта: консультации по узлам и материалам.
Результат: наглядные визуализации будущих помещений, детальный рабочий пакет для строителей и понятная карта материалов и мебели, позволяющие точно реализовать интерьер, как на картинке.
Разный прайс услуг индивидуально подобранный под каждого заказчика
Консультации
Чертежи
Чертежи + визуализация
Чертежи + визуализация + подбор материалов .
700 KGS
Был(а) в сети 15 ч. назад
Отвечает на 100% сообщений Обычно в течение 3 ч.

800 KGS
3-5 лет опыта
Дизайн | Офисы, Дома
Дизайн квартир дизайн дома Смета на строительство Закуп материалов Консультация дизайнера Бесплатный замер Рестораны Кафе Клиники Стоматологии Магазины Бутики Квартиры Особняки Гостиницы
Договорная
Больше 6 лет опыта
Проектирование | Офисы, Дома, Кафе, рестораны
Архитектор, проект дома! проекты домов дизайнер интерьера архитектор услуги архитектора и дизайнера проект дома дизайн проект дома ландшафтный дизайн проектирование частных домов проектировщик Мы ...
Договорная
Больше 6 лет опыта
Проектирование | Дома
Архитектурный проект вашего дома Вы получите: * Генеральный план * План дома * 4 фасады * Разрезы * План кровля * 3D визуализация архитектор, проект дома, проектировщик, архитектор бишкек, проекти...
Договорная
Больше 6 лет опыта
Проектирование | Дома
Архитектурный проект вашего дома Вы получите: * Генеральный план * План дома * 4 фасады * Разрезы * План кровля * 3D визуализация архитектор,проектировщик,проект дома, архитектор бишкек, проект...
3 500 KGS
Дизайн | Квартиры
Услуга: дизайн и отделка интерьеров в классическом и неоклассическом стиле Что делаем: - Проектирование интерьеров «под ключ»: планировочные решения, 3D‑визуализации, рабочие чертежи. - Стеновые п...
500 KGS
Больше 6 лет опыта
Дизайн, Смета на строительство, Проектирование | Офисы, Квартиры, Дома
🎨 Студия Lito Art - профессиональный дизайн интерьера по всему Кыргызстану! Я создаю полноценные проекты с детальными чертежами, где учтено всё: 📐 Планировка помещений с точными размерами 🛋️ Мебе...
Договорная
Больше 6 лет опыта
Дизайн | Офисы, Квартиры, Дома
Хватит мечтать — пора создавать пространство, которое вдохновляет каждый день. Мы превращаем квартиры, дома и коммерческие помещения в стильные, продуманные до мелочей интерьеры. 🔥 Что вы получае...
1 312 KGS
15 USDБольше 6 лет опыта
Дизайн, Смета на строительство, Проектирование | Офисы, Квартиры, Дома
Дизайн интерьера полного цикла Планировочные решения 3д визуализация Смета на материалы Авторский надзор Ремонт под ключ Предоставляем все документы
Договорная
Дизайн | Квартиры
Профессиональный дизайн интерьера квартир и студий - Разработка концепции и детального проекта под ваш образ жизни: планировочные решения, подбор стиля (минимализм, нео‑лофт, экостиль, современная...
262 KGS
3 USDБольше 6 лет опыта
Дизайн, Смета на строительство, Проектирование | Офисы, Квартиры, Дома
Все виды проектирование
Договорная
Дизайн | Дома
Дизайн-проект интерьера квартиры и домов - Стиль: современная сдержанная эстетика в теплой бежево-карамельной палитре, акцент на фактуры дерева, камня и мягкие тактильные ткани. - Планировочное ...
262 KGS
3 USDБольше 6 лет опыта
Дизайн, Проектирование | Офисы, Квартиры, Дома
Проектирование эскизных и рабочих чертежей! Для согласования в архитектуре или в госрегистрации. Самые низкие расценки в городе!!! Есть лицензия на проектирование! Мы проектируем разные типы объект...
Договорная
3-5 лет опыта
Дизайн | Офисы, Квартиры, Дома
Erkabaev Interior Превращаем ваши мечты в продуманное пространство Каждый интерьер — это история. История вашего дома, офиса, кафе или салона. Мы создаём не просто красивые пространства, мы создаё...
Договорная
Дизайн | Дома, Кафе, рестораны, Квартиры
Услуга: профессиональный дизайн интерьеров для квартир, офисов и общественных пространств Что делаем: - Разработка индивидуальных дизайн-проектов: планировочные решения, 3D-визуализации, рабочие ч...
Договорная
3-5 лет опыта
Профессиональный дизайн обделка интерьеров «под ключ» -
Профессиональный дизайн обделка интерьеров «под ключ» - Концептуальное проектирование современных жилых пространств: гостиные с двухсветным объемом, кабинет/второй свет, мастер-спальни, кухни-ст...
800 KGS
3-5 лет опыта
Дизайн | Офисы, Дома
Дизайн квартир дизайн дома Смета на строительство Закуп материалов Консультация дизайнера Бесплатный замер Рестораны Кафе Клиники Стоматологии Магазины Бутики Квартиры Особняки Гостиницы
1 000 KGS
Больше 6 лет опыта
Дизайн, Проектирование | Квартиры, Дома
Если вы давно мечтали о дизайнерском ремонте, тогда вы в надёжных руках 😍Разработка и создание дизайна -проекта квартир, жилых домов ✅индивидуальный подход ✅любые стили интерьера ✅ сопровожде...
Договорная
Больше 6 лет опыта
Дизайн | Офисы, Квартиры, Дома
Хватит мечтать — пора создавать пространство, которое вдохновляет каждый день. Мы превращаем квартиры, дома и коммерческие помещения в стильные, продуманные до мелочей интерьеры. ⠀ 🔥 Что вы получае...
Договорная
Больше 6 лет опыта
Дизайн, Смета на строительство, Проектирование | Офисы, Квартиры, Дома
Ремонт квартир Что предлагается: - Полноценный дизайн‑проект квартиры с проработкой всех помещений: гостиная/ТВ‑зона, ванная комната, санузел, прихожая. - Авторская концепция в спокойной светло‑б...
Договорная
Больше 6 лет опыта
Проектирование | Офисы, Дома, Кафе, рестораны
Архитектор, проект дома! проекты домов дизайнер интерьера архитектор услуги архитектора и дизайнера проект дома дизайн проект дома ландшафтный дизайн проектирование частных домов проектировщик Мы ...
Договорная
Дизайн | Дома
Дизайн-интерьеров в современном минимализме Профессиональная разработка авторских интерьеров для домов и квартир: - лестничные холлы и входные группы с многослойной подсветкой, подвесными световым...
Договорная
Больше 6 лет опыта
Дизайн | Квартиры, Офисы, Дома
Хватит мечтать — пора создавать пространство, которое вдохновляет каждый день. Мы превращаем квартиры, дома и коммерческие помещения в стильные, продуманные до мелочей интерьеры. 🔥 Что вы получае...
6 000 KGS
Дизайн | Квартиры
Профессиональный дизайн и отделка интерьеров в современном минимализме Что предлагается: - Разработка дизайн‑проекта под ключ: планировка, 3D‑визуализация, рабочие чертежи. - Реализация отделки и ...
350 KGS
4 USDБольше 6 лет опыта
Проектирование | Офисы, Квартиры, Дома
Предоставление услуг. Проектирование и строительство. Проектирование любых видов объектов и этажности. Прайс от 8$ за 1м2 - 4$ за 1м2.