
- VIP
Договорная
Дизайн | Дома
Дизайн-проект интерьера квартиры и домов - Стиль: современная сдержанная эстетика в теплой бежево-карамельной палитре, акцент на фактуры дерева, камня и мягкие тактильные ткани. - Планировочное ...Вход•Регистрация
+996 701 127 5xx
Бишкек
Вид услуги:
Доп. услуги:
Тип помещения:
Дизайн‑проект интерьера БИШКЕК
ДИЗАЙН ПРОЕКТ/черчежи
Что включено:
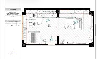
- Полный пакет чертежей и схем: планировочные решения, развертки стен, узлы, привязки электрики и освещения, спецификации материалов и мебели (по чертежам на изображениях).
- 3D‑визуализации помещений в современном минимализме: теплые нейтральные тона, акцентные деревянные панели, встроенные световые линии и подсветка.
- Проработка встроенных систем хранения: гардеробная с раздвижными дверями, секциями для одежды, обуви и чемоданов; прикроватные тумбы и консоли.
- Освещение: скрытые LED‑ленты по периметру потолка и за деревянными панелями, точечные светильники, настенные бра и зеркала с подсветкой; схемы размещения и мощности.
- Предложения по отделке: декоративные стеновые панели из древесных шпонов и МДФ, краска спокойных оттенков, текстуры теплого дерева, напольные покрытия под дерево.
- Эргономика: размеры мебели и проходов, высоты монтажа, оптимальные сценарии хранения и размещение розеток/выключателей, показанные на рабочих чертежах.
- Компоновка спальни: кровать king/queen, мягкое изголовье, парные тумбы, туалетный столик у окна с круглым зеркалом и подсветкой, ниша/гардеробная со стеклянными сдвижными дверями.
- Компоновка гостиной: модульный диван, медиа‑стена с нишей под ТВ, декоративные рейки/панели, журнальные столики, акцентное освещение в виде подвесных дуг.
Результат: гармоничный, функциональный и спокойный интерьер с продуманной световой сценографией, скрытыми системами хранения и детальной рабочей документацией, готовой для реализации строителями.
437 KGS
262 KGS
3 USD
Был(а) в сети 1 ч. назад
Отвечает на 100% сообщений Обычно в течение 3 ч.

Договорная
Дизайн | Дома
Дизайн-проект интерьера квартиры и домов - Стиль: современная сдержанная эстетика в теплой бежево-карамельной палитре, акцент на фактуры дерева, камня и мягкие тактильные ткани. - Планировочное ...
Договорная
Больше 6 лет опыта
Дизайн | Офисы, Квартиры, Дома
Хватит мечтать — пора создавать пространство, которое вдохновляет каждый день. Мы превращаем квартиры, дома и коммерческие помещения в стильные, продуманные до мелочей интерьеры. 🔥 Что вы получае...
262 KGS
3 USDБольше 6 лет опыта
Дизайн, Проектирование | Офисы, Квартиры, Дома
Проектирование эскизных и рабочих чертежей! Для согласования в архитектуре или в госрегистрации. Самые низкие расценки в городе!!! Есть лицензия на проектирование! Мы проектируем разные типы объект...
Договорная
Больше 6 лет опыта
Дизайн, Проектирование | Офисы, Квартиры, Дома
Мы превращаем квартиры, дома и коммерческие помещения в стильные, продуманные до мелочей интерьеры. _________________________________________ 🎨 дизайн интерьера мы разрабатываем уникальные интерье...
Договорная
Дизайн | Дома
Дизайн-проект интерьера квартиры и домов - Стиль: современная сдержанная эстетика в теплой бежево-карамельной палитре, акцент на фактуры дерева, камня и мягкие тактильные ткани. - Планировочное ...
800 KGS
Дизайн | Квартиры
Ремонт квартира под ключ.. - Полный комплект проектной документации: обмерный план, планировочные решения, развертки стен, схемы электрики/освещения, спецификации отделочных материалов и мебели. - ...
875 KGS
10 USDДизайн | Квартиры
Профессиональный дизайн интерьера в современном спокойном стиле Что входит: - Разработка дизайн‑проекта квартиры/дома в натуральной бежево‑теплой палитре с акцентом на мягкое рассеянное освещение....
Договорная
Больше 6 лет опыта
Смета на строительство, Проектирование, Дизайн | Кафе, рестораны, Дома, Офисы
Ремонт квартир Что предлагается: - Полноценный дизайн‑проект квартиры с проработкой всех помещений: гостиная/ТВ‑зона, ванная комната, санузел, прихожая. - Авторская концепция в спокойной светло‑б...
15 303 750 KGS
175 000 USDДизайн | Квартиры
Продается готовый дизайн-проект интерьера (реализованный объект на фото) в современном стиле для квартиры 2–3 комнат: - Планировочные решения холла, гостиной и санузла с эргономикой проходных зон....
85 KGS
Дизайн | Квартиры
Дизайн интерьера современного жилья - Полный авторский проект интерьера в современном минимализме: теплые природные оттенки, сочетание дерева, камня и текстиля, продуманная подсветка по периметру ...
Договорная
3-5 лет опыта
Дизайн | Дома, Квартиры
Дизайн-интерьер спальни в современном минимализме Что предлагается: - Комплексный дизайн-проект светлой спальни в теплой нейтральной палитре (бежевые, карамельные, молочные оттенки). - Планировочн...
Договорная
Дизайн | Квартиры
Профессиональный дизайн-проект интерьера: ванная комната и спальня Что предлагается - Разработка полного дизайн-проекта современных интерьеров под ключ для санузла и спальни. - Вариативные концепц...
500 KGS
3-5 лет опыта
Проектирование, Дизайн | Квартиры, Дома
Современный дизайн-проект вашего дома Разработаем продуманный интерьер в актуальной современной эстетике — от планировки до финальной визуализации. Что входит: - Концепция и стиль: светлые нейтра...
Договорная
Дизайн | Квартиры
Тууганда биз уй ремонт кылабыз кайрылабериниздер«под ключ» Что включено: - Концепция и 3D-визуализации для квартиры в современном спокойном стиле (натуральные оттенки, теплое дерево, мягкие тексту...
Договорная
Дизайн | Квартиры
Профессиональный дизайн интерьеров под ключ - Современные проекты жилых пространств: гостиные, кухни-столовые, спальни, кабинеты. - Стильные решения в современном, минималистичном и сканди-минимал...
Договорная
Больше 6 лет опыта
Дизайн | Офисы, Квартиры, Дома
Хватит мечтать — пора создавать пространство, которое вдохновляет каждый день. Мы превращаем квартиры, дома и коммерческие помещения в стильные, продуманные до мелочей интерьеры. 🔥 Что вы получае...
Договорная
Дизайн | Квартиры
Профессиональный дизайн интерьера квартир и студий - Разработка концепции и детального проекта под ваш образ жизни: планировочные решения, подбор стиля (минимализм, нео‑лофт, экостиль, современная...
250 KGS
1-2 года опыта
Дизайн, Смета на строительство, Проектирование | Офисы, Квартиры, Дома
Предлагаю услуги по комплексному проектированию: Архитектурная концепция+строительство Дизайн интерьера и экстерьера Планировки и рабочие чертежи 3D-визуализация Электрика, ландшафт, подбор ма...
Договорная
Дизайн | Дома
Дизайн-интерьеров в современном минимализме Профессиональная разработка авторских интерьеров для домов и квартир: - лестничные холлы и входные группы с многослойной подсветкой, подвесными световым...
Договорная
Дизайн | Квартиры
Дизайн-проект интерьера в стиле современная неоклассика Что входит: - Полный концепт квартиры: гостиная, спальня, прихожая, зона ТВ и хранение. - Планировочные решения с расстановкой мебели. - Виз...
1 300 KGS
Больше 6 лет опыта
Дизайн, Смета на строительство, Проектирование | Офисы, Квартиры, Дома
Дизайн интерьера/экстерьера!!! *Квартиры *Частные дома *Коммерческие помещения Полный пакет чертежей и визуализаций, авторское сопровождение по истечению ремонта, строительная бригада, рекоме...
Договорная
Дизайн | Дома, Кафе, рестораны, Квартиры
Услуга: профессиональный дизайн интерьеров для квартир, офисов и общественных пространств Что делаем: - Разработка индивидуальных дизайн-проектов: планировочные решения, 3D-визуализации, рабочие ч...
900 KGS
1-2 года опыта
Дизайн, Проектирование | Дома, Кафе, рестораны, Офисы
Дизайн-проект интерьера Услуга включает разработку концепции, планировочных решений, подбор отделочных материалов, световых сценариев и мебели, визуализации ключевых зон (спальня, детская). Подхо...
Договорная
Услуга: дизайн и отделка интерьеров в современном неоклассическом
Услуга: дизайн и отделка интерьеров в современном неоклассическом стиле Описание: - Проектирование жилых интерьеров с акцентом на элегантную классику и современные технологии освещения. - Стены: д...